Embrace Comfort, Embrace Community
Welcome to 265 Marcoux
Discover the charm of Lorette, Manitoba at 265 Marcoux, where community and comfort converge. Nestled in a serene setting, this is your gateway to a lifestyle where tranquility meets modern living.
Unlock Joy, Unlock Life – Only at 265 Marcoux.
BEST Home EXPERIENCE FOR YOU
Have you wanted to get away from the noise and crowds of the city, save some money and feel relaxed and calm in a small-town setting? Or wanted to live a little closer to, but not in, the city? Or wanted to live in a NEW home, in an affordable location, and not have to worry about maintenance. This opportunity is for you.
These spacious, walk-up, two and three-bedroom townhome-style suites, with private entrance, are a perfect place to call home at any stage in life!
The open concept living area with 9′ ceilings makes this suite feel like home. The kitchen is large and includes four stainless steel appliances. The master bedroom has a walk-in closet and each suite has two bathrooms. It comes with in-suite laundry, and forced-air heating and cooling. Enjoy a private deck, ample storage and one parking stall (additional garages available).
Master Bedroom
The master bedroom is designed as a personal haven, featuring ample space and a walk-in closet, providing both comfort and practicality. This space is tailored for relaxation and organization, ensuring a serene retreat within the home.
Features:
- Private entrance
- Open concept living area with 9' ceiling
- In-suite laundry with full size Washer & Dryer
- Parking stall included; extra stalls available
- Optional: enclosed, insulated & drywalled garage
- Exceptionally quiet townhome design
- Large Private balcony
- Quartz counter-tops and vinyl plank flooring
- Forced air furnace with central air conditioning
- Stainless-steel appliances: Fridge/Freezer (18 CU+), Ceramic Top Range/Stove, Automatic Dishwasher, Over-the-Range Microwave
- Master bedroom with walk-in closet
- Pet friendly (cat or small dog)
- Window Coverings
- Secure storage for bikes and large items
- 2 bathrooms each with under-mount sinks
- 2 bedroom (1040 sf) & 3 bedroom (1196 sf) layout
- Digital Thermostat & Energy efficient lighting
Spacious Open Concept
The living space is designed to exude a sense of spacious elegance, with its wide, open layout bathed in natural light, leading out to a private balcony. This design not only maximizes the sense of space but also creates an inviting atmosphere that makes the apartment truly feel like home, perfect for both quiet relaxation and lively gatherings.
Amenities
Each townhome-style suite at 265 Marcoux is thoughtfully designed with individual entrances, ensuring privacy and convenience. Accompanied by a designated parking stall and generous storage options, these amenities enhance the living experience by providing both ease and functionality.
Starting at $1559
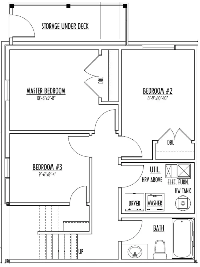
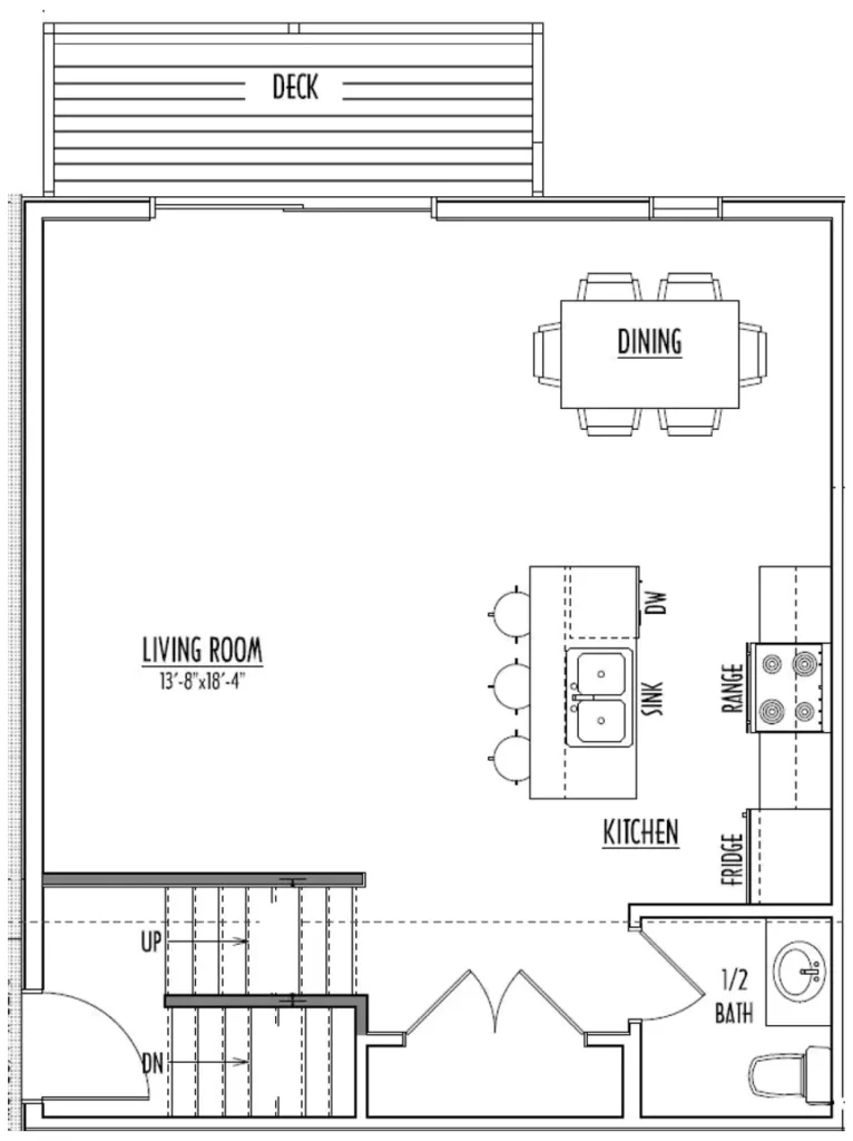
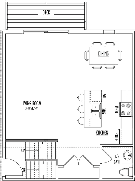
Two Bedroom Front
Upper Level Floor Plan
1040 square feet
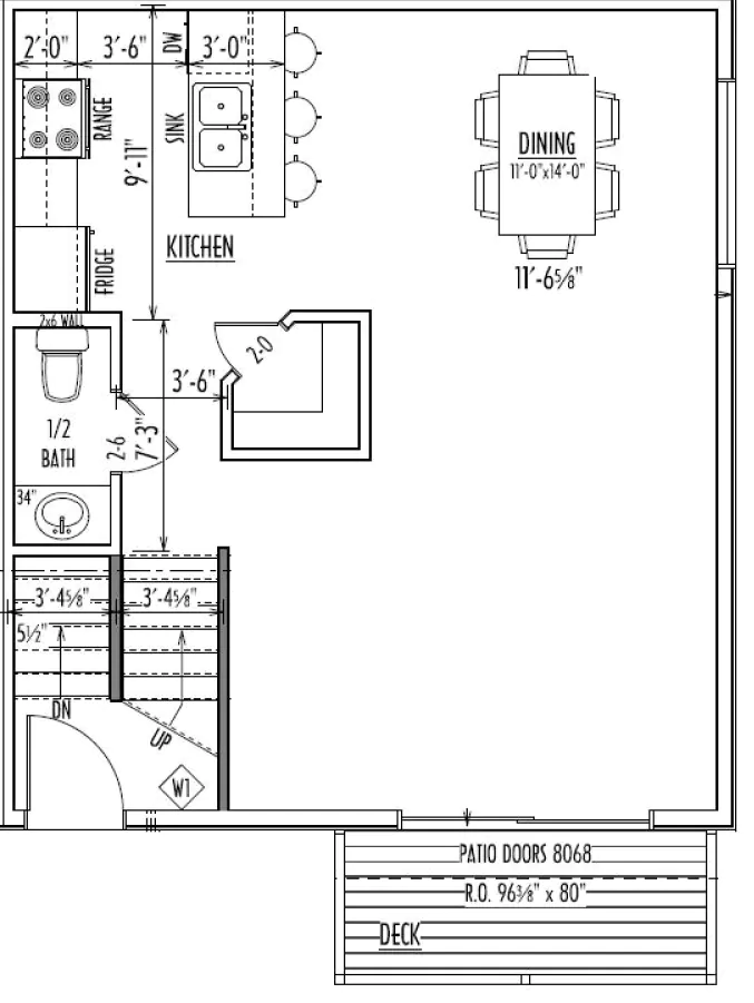
Lower Level Floor Plan
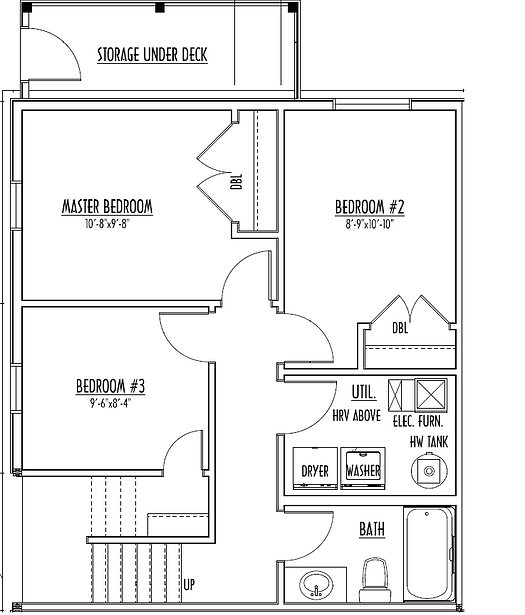
Two Bedroom Back
Upper Level Floor Plan
1040 square feet
Lower Level Floor Plan
Starting at $1759
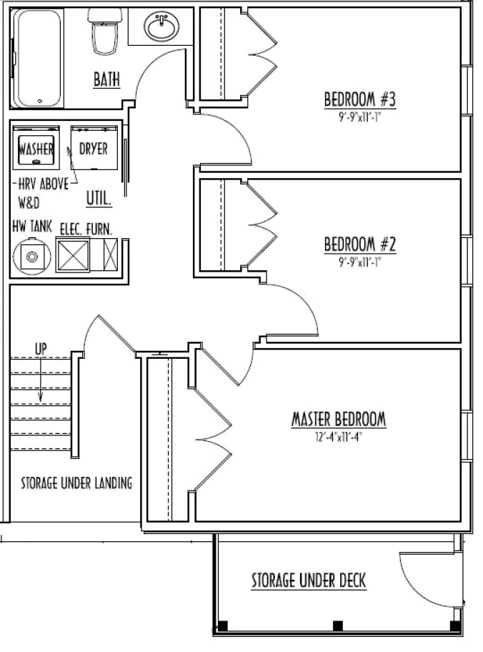
Three Bedroom Front
Upper Level Floor Plan
1196 square feet
Lower Level Floor Plan
Three Bedroom Back
Upper Level Floor Plan
1196 square feet
Lower Level Floor Plan
Virtual Tour
First month rent discounted on select suites.
Why You Should Choose us
Choosing us means opting for a harmonious blend of modern living within a serene environment. Our focus on community, quality, and comfort sets us apart, offering a lifestyle that caters to your well-being and satisfaction.
- Short 15-minute commute to Winnipeg
- Next to schools: Kindergarten to Grade 12 & Daycare
- Engineered sound-resistant walls
- Premium units featuring stylish design elements.
- Tailored for a hassle-free lifestyle.
Modern Living Spaces
Our homes are designed with modern aesthetics and functionality in mind, offering spacious layouts and high-end finishes that cater to your comfort and style.
Amenities for Every Lifestyle
From in-suite laundry to private decks and optional garages, our range of amenities ensures that your living experience is convenient and enjoyable.
Serene Community Setting
Nestled in a tranquil area, we provide a peaceful living environment that's still close to essential amenities, combining the best of both worlds.
Commitment to Residents
Our dedicated team is focused on providing exceptional service and support, making sure that your home at 265 Marcoux is more than just a place to live.
I never thought I'd find such a perfect blend of modern amenities and small-town charm until I came to 265 Marcoux. The attention to detail in the design of the homes is truly remarkable.
The team at 265 Marcoux made moving in so smooth. I love the tranquility of the area, and my apartment's layout and features are exactly what I was looking for in a home.
As a pet owner, finding a place that welcomes my furry friend and offers such beautiful spaces is a rare find. 265 Marcoux has exceeded all our expectations.
Moving to 265 Marcoux was a game-changer for us. The sense of community and the serene environment is just what we needed. Our home is spacious and filled with light, making every day here a delight.
Explore Our Exceptional Living Spaces
Get In Touch
Your New Home Awaits – Reach Out Now
265 Marcoux
- 265 Marcoux Ave, Lorette, MB
- 204-444-1000
- [email protected]
Follow Us
This site is protected by reCAPTCHA and the Google Privacy Policy and Terms of Service apply.
Emma Tremblay